設計師:陶利利(江北旗艦店 主案設計師)
戶型詳情:苑文承楠138平米 新中式風格
案例說明
這次設計的主要元素就是具有東方韻味的中國水墨畫,中國水墨畫集中體現了中國人與作為審美客體的自然生物的審美關系,具有較強的抒情性。它貫穿了整個空間的不同區域,通過裝飾畫、壁紙等不同形式,傳達著整個空間氣質的連貫性和一致性。整個空間以淺黃色和深咖為主,除了令人沉靜的藍,眼睛所見之處,都是不經多加修飾的木的紋理和原色,讓空間更顯自然和親近。整個空間仿佛讓你回到江南水鄉的夢境。
原始結構圖↓

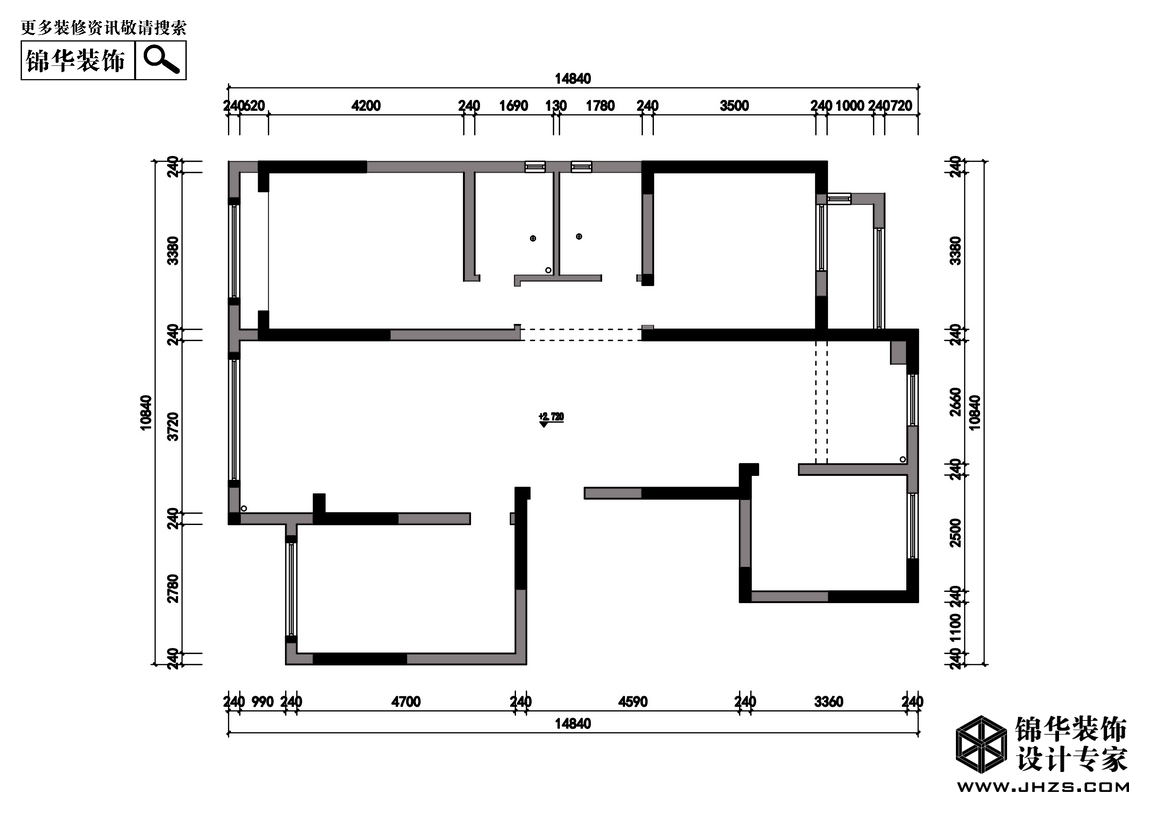
平面布置圖↓
客戶效果圖↓

客戶效果圖↓

客戶效果圖↓

想了解更多文承楠苑戶型資料么?
錦華裝飾準備了文承楠苑各戶型全套設計方案、工程量報價、參考效果圖、主材搭配方案.歡迎您和網絡客服取得聯系,預約來店面詳細溝通.錦華裝飾,設計專家!.
江蘇家裝示范品牌
代表地區優秀設計聲音
集25年工程管理經驗之大成
省時、省力更省心
| 走進錦華 | 設計團隊 | 作品列表 | 戶型解析 | 裝修百科 |
關注錦華公眾號
|
瀏覽手機官網 |
全國熱線 025 86550815 |
||||||||||
| 新聞列表 | 錦華文化 | 堂杰國際設計 | 1865旗艦店 | 極簡 | 中古 | 秦淮金茂府 | 常見問題 | ||||||||||
| 全國分公司 | 錦華招聘 | 河西旗艦店 | 鼓北旗艦店 | 法式 | |||||||||||||
| 錦華簡介 | 聯系我們 | 城東旗艦店 | 江寧旗艦店 | 歐式古典 | 北歐 | 中交錦方 | |||||||||||
| 資質榮譽 | 法律聲明 | 江北旗艦店 | 江浦店 | 美式田園 | 新古典 | 溧水玖宸府 | |||||||||||